
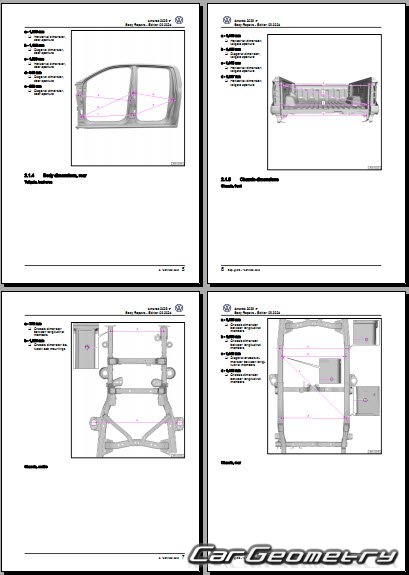
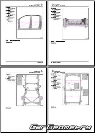
Заводское руководство содержит контрольные размеры кузова Volkswagen Amarok 2023-2031 Body Repair Manual и включает описание замены различных элементов кузова Single и Double Cab, контрольные точки геометрии кузова Фольксваген Амарок.
Руководство по кузовному ремонту Volkswagen Amarok 2023-2031 (Body Repairs manual) 212 страниц на английском языке. Данный сборник содержит огромное количество исключительно полезной и необходимой информации для занимающихся кузовным ремонтом самостоятельно и владельцев фирм по кузовному ремонту VW Amarok.
Примеры данных из архива
Скачать Заводское руководство по ремонту кузова и размеры кузова
Volkswagen Amarok 2023-2031 Body dimensions
Volkswagen Amarok 2023-2031 Body dimensions

















