
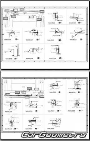
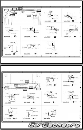
Кузовные размеры для восстановления геометрии кузова Rivian EDV 700 2023-2029. С помощью этих данных осуществляется проверка геометрии кузова Van, с последующей рихтовкой поврежденных частей автомобилей Ривиан 700 Ван.
Выборка из заводской документации и различных стендовых баз по Rivian EDV 700 2023-2029 Body dimensions, стендовые размеры кузова и контрольные точки геометрии Ривиан едв 700.
Примеры данных из архива
Скачать контрольные размеры кузова
Rivian EDV 700 2023-2029 Body dimensions
Rivian EDV 700 2023-2029 Body dimensions
















